科技類企業富有極強的創新精神,其尋求多元化的辦公模式以滿足不同工作類型的要求,以及更為扁平化的工作形態。設計師于概念階段就摒棄了傳統辦公思維方式,針對不同辦公形式的需求,為辦公空間的室內設計創造了一種全新的模式。一個共享多樣的辦公室環境,既能激發員工的創造思維、提高協作和溝通效率,又能營造積極向上的工作環境和企業文化,這正是對未來辦公的**闡述。
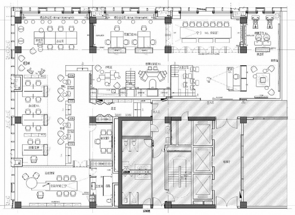
整個空間可以分為公共區、動區、靜區三個大區域,接待、會議、溝通、儲物區歸納為公共區;花園工位、水吧、展示區歸納為動區;員工辦公、休息、經理區歸納為靜區。在平面分區上,把公共區域作為核心區域,動靜區根據采光、結構等建筑條件進行相應分布,做到動靜分離同時又讓各功能模塊緊密相連。








領企設計:www.gaozhicai.com.cn(更多裝修設計案例展示)
辦公室裝修低成本:精打細算,打造理想辦公空間。 在當今的商業環境中,企業面臨著各種成本壓力。如何在有限的預算內打造舒適高效的辦公空間?本文將為您揭示辦公室裝修低成本的秘密,幫助您精打細算,實現理想辦公環境的創造。
辦公室裝修,是每個企業必須面對的問題之一。而選擇一家專業的辦公室裝修公司,對于企業而言則顯得更加重要。那么,你知道如何選擇一家合適的辦公室裝修公司?嗎?接下來,小編就為大家介紹幾個注意點。
辦公室裝修屬于公裝范疇,跟普通家裝的設計不同,不但要凸顯公司的文化底蘊,還要展現公司的氛圍,在裝修收費方面也有很大差異。那么,辦公室裝修價格怎樣?一平方多少錢?下面就讓領企上海辦公室設計?公司小編為大家做詳細介紹。
一個好的寫字樓環境可以極大的提升員工的工作熱情,所以寫字樓裝修設計合理與否,需要大家重視。好的寫字樓裝修不僅可以利用更大的空間,還能營造積極的工作氛圍。那么如何做好辦公室設計呢?這里面其實有不少的學問。今天上海辦公室設...
每個人都渴望寬敞明亮的辦公空間。但是在房價飆升的時代,尤其是一二線城市,寫字樓的購買價格 租金是非常高的。所以想裝修辦公室的老板們都希望提高空間利用率,滿足多樣化的需求。既能給員工帶來便利,又能提升企業形象,滿足發展...