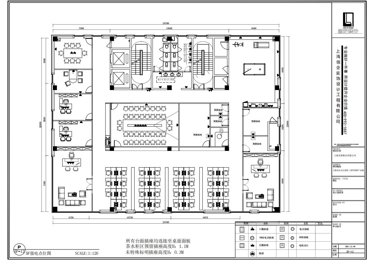
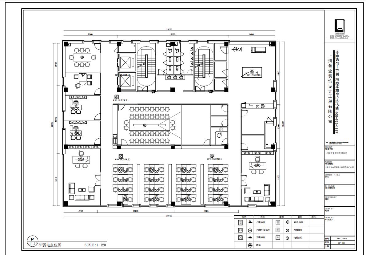
在辦公室裝修設計之中,安全性是非常需要重視的,尤其是強弱電布線這一部分,通常我們把電話線、網絡線、視頻線及音響線等稱之為弱電線,其他則稱為強電線),前期辦公室布線設計好對后期的施工提供了堅韌的基礎,也會影響著辦公室的整個裝修的質量和美觀性的效果。辦公室設計裝修的布線也是有很多的設計施工技巧及注意事項的,辦公室裝修設計時強弱電布線有哪些施工技巧?注意事項什么?那么接下來就由專注上海辦公室裝修設計的領企設計小編為大家分享:
辦公室裝修設計布線注意事項:
1、施工前一定要注意強電電量負荷是否適宜
辦公室裝修與家裝不同,大部分辦公室都有許多工位,辦公電氣。對用電需求量也相對較大,所以在辦公室裝修前必須先計算每一個座位插座所負載的電器功率,將所有的負荷匯總求和,看看總的功率是多少千瓦,看看辦公室的入戶主線能否負載得起,如果超過負荷,需要做增容處理。建議找專注辦公室裝修設計的裝修公司來做規劃,省時、省心。

2、強弱電點位布置是否的合理性
部分業主想省設計費,有時會自己找師傅根據自己的想法隨意的安裝插座,后期在使用過程中相當不方便,而且還有安全隱患。在辦公室裝修施工之前,建議大家要請專業的辦公室設計師對強弱點點位進行合理規劃,對可能要增設的座位,可能需要變更區域的功能都在考慮范圍中,提前做好預估計劃,一旦管線預埋完畢,日后再增設點位,重新布線,那將是非常麻煩的事。設計師將所有點位體現在施工圖上,讓師傅按圖施工。


3、強弱電排線要分開
辦公室裝修施工時強弱電在布線時需要分開,不然會干擾弱電的信息傳輸,影響辦公設備的使用。在布線中,我們*為忌諱的是將所有的電線收納均在一個地方,如果這樣,不僅會看起來雜亂,對辦公設備的使用也有很大的影響。在強弱電布線時,
國家的標準是:強弱電要分開走線,禁止共管共盒,且強弱電之間線路的平行距不得小于30cm。出于實際情況考慮,對于強弱電之間的距離應至少留出15厘米,這個距離也能保證不會出現強電干擾弱電的情況。

4、先布官再穿線
出于后期辦公室電線維修維護考慮,我們在裝修施工布線時,都需要遵循先安裝管路再穿線的原則,不管是強電線還是弱電線,都需要按照這個原則來布線。這樣的做法不僅方便后期維修更換電線,同時還能防止電線出現無法抽動的現象。

5、開槽還是走明線?
根據辦公室交付標準的不同,有的架空地板交付,有的直接毛坯水泥地交付。如果有架空地板交付,裝修施工布線就非常的方便美觀,安全性也有保障。若是水泥地交付首先建議地面開槽布線,安全性有保障。當然也有部分客戶為了節省成本使用明線,在布線時就要特別注意明線卡槽產品質量及布線走向。安全第一!

6、隱蔽工程的檢查驗收
隱蔽工程一直辦公室裝修施工時*重要的一個環節,強弱電在石膏板隔墻里或吊頂上面,客戶需要對管線的布排方式進行檢查驗收,合格后再安裝面上的材料。專注上海辦公室裝修的領企設計公司在對彎頭、直接、鎖扣、跨接線、線盒的安裝時,要求工人師傅嚴格按照強弱電作業規范,對強弱電線路做好詳細記錄,如業主方需要了解強弱電的布線細節時,將記錄交給業主方了解。
?
以上就是領企設計小編為大家分享的辦公室裝修布線相關知識內容,希望在看完本文內容之后,能夠找到適合自己辦公室設計家具布線方式。當然,對于一些準備裝修的業主來講,提前學習相關辦公室裝修知識很有必要,關注上海領企設計裝飾公司,了解更多辦公室裝修效果圖和獲取自己的辦公室裝修報價!
辦公室裝修低成本:精打細算,打造理想辦公空間。 在當今的商業環境中,企業面臨著各種成本壓力。如何在有限的預算內打造舒適高效的辦公空間?本文將為您揭示辦公室裝修低成本的秘密,幫助您精打細算,實現理想辦公環境的創造。
辦公室裝修,是每個企業必須面對的問題之一。而選擇一家專業的辦公室裝修公司,對于企業而言則顯得更加重要。那么,你知道如何選擇一家合適的辦公室裝修公司?嗎?接下來,小編就為大家介紹幾個注意點。
辦公室裝修屬于公裝范疇,跟普通家裝的設計不同,不但要凸顯公司的文化底蘊,還要展現公司的氛圍,在裝修收費方面也有很大差異。那么,辦公室裝修價格怎樣?一平方多少錢?下面就讓領企上海辦公室設計?公司小編為大家做詳細介紹。
一個好的寫字樓環境可以極大的提升員工的工作熱情,所以寫字樓裝修設計合理與否,需要大家重視。好的寫字樓裝修不僅可以利用更大的空間,還能營造積極的工作氛圍。那么如何做好辦公室設計呢?這里面其實有不少的學問。今天上海辦公室設...
每個人都渴望寬敞明亮的辦公空間。但是在房價飆升的時代,尤其是一二線城市,寫字樓的購買價格 租金是非常高的。所以想裝修辦公室的老板們都希望提高空間利用率,滿足多樣化的需求。既能給員工帶來便利,又能提升企業形象,滿足發展...